Rychlé vyhledávání nemovitostí
Typ zakázky Typ nemovitosti Okres Cena do (Kč)

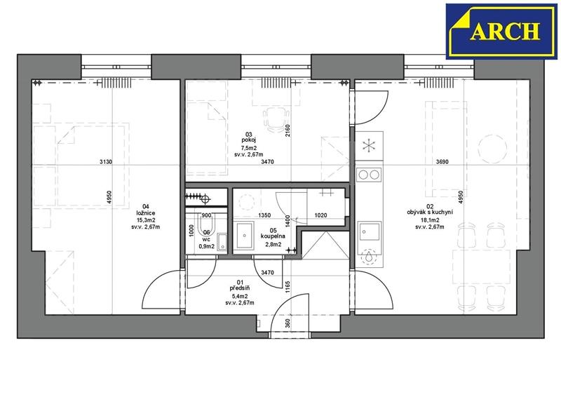
Pronájem bytu 3+kk, 50 m², Liberec V-Kristiánov

Evidenční číslo: BT642L
Typ zakázky: Pronájem
Typ nemovitosti: Byt
Dispozice: 3+kk
Lokalita: Slovenského národního povstání, Liberec
Stav zakázky: Aktivní
Typ vlastnictví: Osobní
Cena: 17 000 Kč za měsíc
Cena poznámka: + služby ?.___Kč/měs. +elektřina
Byt 3+KK (50,0m²) bez balkonu, orientovaný na jih až jihozápad - je umístěný ve 2.patře v domě bez výtahu. Výhled v zimě je skrz koruny stromů až na Ještěd, ale v letních měsících je výhled pouze do korun listnatých stromů (lip), které rostou na protější straně ulice. Jedná se o atraktivní lokalitu vzdálenou asi 1,3km od centra města. Přilehlá komunikace je jednosměrná, klidná. Dům byl postaven v 60. letech 20. stol. Vybavení kuchyňského koutu tvoří kuchyňská linka s dřezem a dvouplotýnkovou el. varnou deskou, digestoř, horkovzdušná trouba, myčka nádobí, lednička a mraznička(?). V koupelně je sprchový kout, umývadlo s podumývadlovou skříňkou, zrcadlová skříňka s osvětlovací rampou a místo pro pračku. Koupelna je kompletně obložená až ke stropu. Závěsné WC je umístěno v samostatné místnosti s umývátkem. V předsíni je velká vestavěná skříň. Podlahy v koupelně a na WC tvoří keramické dlažby. V obývacím pokoji a v ložnici jsou renovované parkety, v předsíni a v dětském pokoji jsou podlahy vinylové. Dveře jsou hladké plné, osazené do bílých obložkových zárubní. Okna jsou plastová, s izolačními dvojskly a se žaluziemi. Celý byt prošel od listopadu 2025 do ledna 2026 kompletní rekonstrukcí vč. rozvodů elektřiny. Obýv. pokoj s kuch. koutem má 18,1m², ložnice 15,3m², dětský pokoj 7,5m², předsíň 5,4m², koupelna 2,8m² a WC 0,9m². Budova je zateplená. Vytápění je ústřední - napojené na městskou teplárnu. Stejným způsobem je zajištěn také ohřev TUV. K bytu přísluší běžná sklepní kóje umístěná v suterénu domu. V suterénu je k dispozici také místnost pro kočárky a kola???. Parkování je možné před domem. Byt je volný, připravený k nastěhování. Záloha na služby (teplo, teplá voda, vodné a stočné a elektřina na schodišti atd.) je ?.___Kč/měs. Elektřinu si sjedná nájemce přímo s dodavatelem elektřiny (odhadem cca 1.000 až 1.500 Kč/měs.). V domě je rozvod kabelové TV + internet ???. Při podpisu smlouvy nájemce složí vratnou kauci 25.000Kč?? (jistina na vybavení a nedoplatky) + provizi 15.000 Kč.
photo_2 photo_3 photo_4 photo_5 photo_6 photo_7 photo_8 photo_9 photo_10 photo_11 photo_12 photo_13 photo_14

Makléř

Lubomír Bureš
Lubomír Bureš
+420 604 201 487
Anuita: 0 Kč
Plocha: 50 m2
Obytná plocha: 50 m2
Užitná plocha: 50 m2
Plocha sklepa: 3 m2
Elektřina: 230/400 V
Kanalizace: Městská
Voda: Vodovod
Balkón: Ne
Lodžie: Ne
Sklep: Ano
Terasa: Ne
Výtah: Ne
Konstrukce budovy: Cihla
Vytápění: Dálkové
Patro: 3. patro
Celkem pater: 4
Počet místností: 0
Počet nadzemních podlaží: 5
Počet podzemních podlaží: 1
Počet parkovacích míst: 0
Rok renovace: 2026
Rok výstavby: 1965
Stav nemovitosti: Velmi dobrý
Umístění: Klidná část obce
Zařízeno: Nezařízeno
Volný od: 28.02.2026